Zariadenie na výrobu suchých stavebných zmesí
Spoločnosť NORMIT s.r.o. vyrába a vyvíja zariadenie pre potravinársky, chemický, farmaceutický, kozmetický priemysel a ďalšie priemyselné odvetvia. Kladieme vysoké nároky na kvalitu výroby a venujeme osobitnú pozornosť zavádzaniu inovatívnych technológií. Mnohoročné skúsenosti a kvalitná výroba poskytuje najlepšie výsledky.
Spoločnosť NORMIT s.r.o. okrem strojov, vyrába aj technologické linky a jednotlivé stroje na výrobu:
- sadrovca;
- cementu;
- asfaltových zmesí;
- аsfaltu;
- umelého kameňa a mramoru.

Spoločnosť NORMIT s.r.o. vyrába kompletnú sadu zariadení pre výrobu suchých stavebných zmesí а tiež jednotlivé stroje, ktoré je možné namontovať do existujúcich výrobných liniek s cieľom zdokonaliť ich, zvýšiť efektívnosť výroby a zlepšiť kvalitu výrobkov, znižovať náklady na údržbu a energiu.
Zariadenia spĺňajú všetky Európske štandardy a normy pre kvalitu a spoľahlivosť, spotrebu energie, stabilné a vysoko kvalitné hotové výrobky.
Moderná výroba suchých zmesí musí byť schopná rýchlo prejsť na výrobu nového produktu, musí byť účinná a efektívna z hľadiska nákladov, z ekonomického hľadiska, a vyrábať čo najširší sortiment výrobkov.
Linky na výrobu suchých zmesí Normit umožňujú ich držiteľom rýchlo reagovať na potreby trhu a zaviesť nové typy zmes tak, aby vyhovovali potrebám zákazníkov.
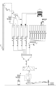
Automatický komplex (mini-mlyn), ktorý je určený pre výrobu suchých zmesí, miešanie s kapacitou až 5 t / h, vykonáva sa na základe mixéra NORMITMIX-500.
1. Základná štruktúra
- Systém spracovania piesku, cementu, sadry a iných komponentov;
- Skladovanie spotrebného materiálu;
- Systém dávkovania;
- Dávkovač;
- Systém vysokorýchlostného mixéra, s rozdrvením;
- Systémy balenia hotových výrobkov;
- Systém automatizácie procesov.
* Na požiadanie je tu možnosť voliteľných zariadení a ďalšieho vybavenia.
2. Výkon
|
Čas |
25 kg vrecia |
Тоny |
|
Hodina |
200 |
5 |
|
Zmena |
1600 |
40 |
|
Deň |
4800 |
120 |
|
Mesiac |
112000 vriec |
2800 |
Objednaním zariadenia pre výrobu suchých stavebných zmesí u nás, získate:
- Spoľahlivé a vysoko kvalitné armatúry, ktoré poskytujú vysoký stupeň homogenizácie východiskových zložiek;
- Veľmi presné dávkovacie systémy, ktoré poskytujú stabilné zmesi, ktoré presne zodpovedajú receptúre;
- Pohodlné a spoľahlivé baliace stroje;
- Rovnako ako inovatívny systém sušenia a dopravných zložiek, ktoré umožňujú kompaktnejšie linky, zníženie spotreby energie, výsledok - nižšie prevádzkové a servisné náklady, a navyše lepšia kvalita surovín a konečného produktu.
Ponúkame zariadenia na výrobu suchej zmesi:
- rôzne kapacity
- Zariadenia na výrobu suchej stavebnej zmesi
- samostatné jednotky:
- rôzne typy armatúr
- triediarne (sito)
- baliace stroje
- Prístroje na meranie
- Sušičky
- Koše
Suchá zmes zo špeciálnych zložiek je varená v továrni presne podľa receptúry pre určitý typ konštrukcie. Spravidla suchá zmes je cement (kombinácia cementu a vápna, sadry, alebo iné kombinácie).
Okrem toho, suchá zmes obsahuje špeciálne modifikátory, ktoré zmesi dodávajú požadované vlastnosti - odolnosť proti mrazu, odolnosť proti vysokým teplotám, atď.
Predovšetkým sa do suchých zmesí pridávajú súčasti, tak aby mali vhodnú priľnavosť, plasticitu a vhodné vlastnosti, pre nátery - tvrdosť, farba, vodoodpudivosť.
Sortiment:
- materiály (cement, sadra, vápenec, alabaster)
- univerzálny mix
- izolácia proti vode
- malta (malta, injektáže, tesnenie škár, lepidlo - suchá zmes, sadrokartón)
- Lepidlá (suchá zmes, univerzálne, pre stavebníctvo, obkladové)
- podlaha (zmesi na podlahové krytiny, potery)
- Tmel
- omietka
Výrobná linka na výrobu suchej zmesi


• Zmiešavače (miešadlá) sú určené pre intenzívne miešanie sypkých komponentov. Tieto zariadenia umožňujú komplexné miešanie zmesi s dobou trvania jedného cyklu 2,5 až 5 minút. Okrem toho môžu byť vybavené vysokorýchlostnými čepeľami, ktorých úlohou je rozptýlenie zmesi.
• Plniaci stroj je určený pre balenie sypkých produktov rôznej štruktúry (od jemnej až po granulovú štruktúru). Tiež je možné tieto stroje použiť na balenie suchých zmesí, lepidiel a suchého betónu. Výkon plniaceho stroja závisí na vlastnostiach balených výrobkov (sáčky, kontajnere,...) a výkon môže byť niekoľko stoviek vriec za hodinu.
• Dávkovanie prísad môže byť buď automatické (pomocou automatických dávkovacích prísad), alebo ručné, pomocou vopred zvážených častí, ktoré sa pridávajú pomocou špeciálneho lievika vybaveného klapkou. V pravú chvíľu (podľa výrobného procesu stavebnej suchej zmesi) dochádza k otvoreniu uzávierky, a to buď automaticky, alebo manuálne operátorom.
• Zariadenie pre vybalenie vriec . Jednotlivé komponenty, ktoré tvoria zložky suchých zmesí, sú obvykle dodávané v balení. Tieto zariadenia sa skladajú z lievika, ktorý je vybavený grilom a filtrom. Vrecia roztrhne ručne operátor a prach je nasávaný cez filter. Tiež obsahuje vlhkomer.


























.jpg)
























.jpg)



































